咨询热线:

13583885739

0538-7442708

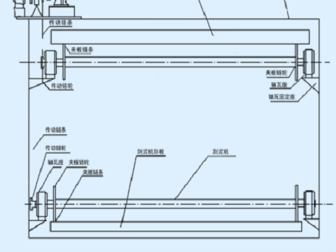
排泥设备 当前位置:  首页  > 产品中心 > 排泥设备