山东省新泰市润兴机械设备有限公司
具有生产环保设备、生化填料、曝气、起重机械四大系列的生产企业
0538-7442708
网站首页
公司介绍
产品中心
拦污设备
排泥设备
曝气设备
气浮
过滤设备
填料系列
集油管设备
水位调节设备
拌料加药设备
荣誉资质
工程案例
新闻中心
联系我们
产品列表
Product list
拦污设备
排泥设备
曝气设备
气浮
过滤设备
填料系列
集油管设备
水位调节设备
拌料加药设备
咨询热线:
13583885739
0538-7442708
排泥设备
当前位置:
首页
>
产品中心
>
排泥设备
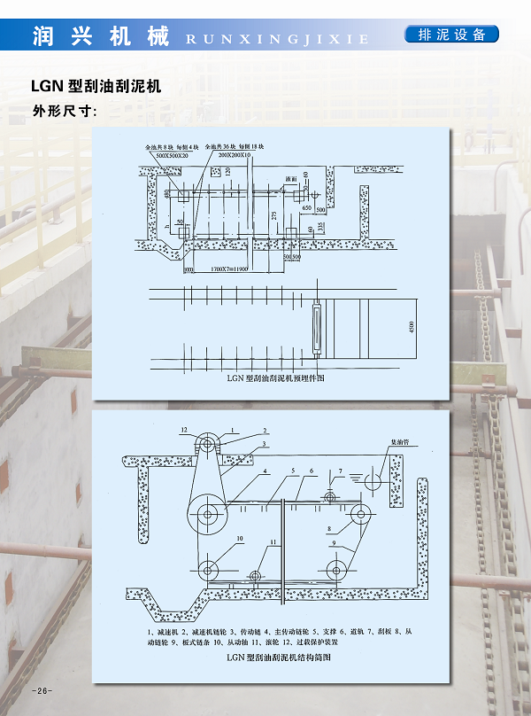
LGN型刮油刮泥机
作者: 来源: 日期:2021-06-02 10:07:53 人气:
127
上一篇:
ZXNS型中心传动浓缩机
下一篇:
FGN型分体式刮油刮泥机